设计盒子
开通设计盒子一级会员,享受全站积分资源五折优惠!开通二级会员,享受全站积分资源免费下载!
立即开通
幸福里118㎡平面布置图及CAD源文件下载-设计盒子
幸福里118㎡平面布置图及CAD源文件下载
此内容为付费资源,请付费后查看
5
立即购买
您当前未登录!建议登陆后购买,可保存购买订单
本站仅负责资源的整理发布,资源链接丢失可到社区反馈,默认不低于两种的下载渠道,资源分享请到社区版块发帖或投稿发布相关资源,本站不对资源的安全性负责。
付费资源

幸福里118㎡平面布置图及CAD源文件下载

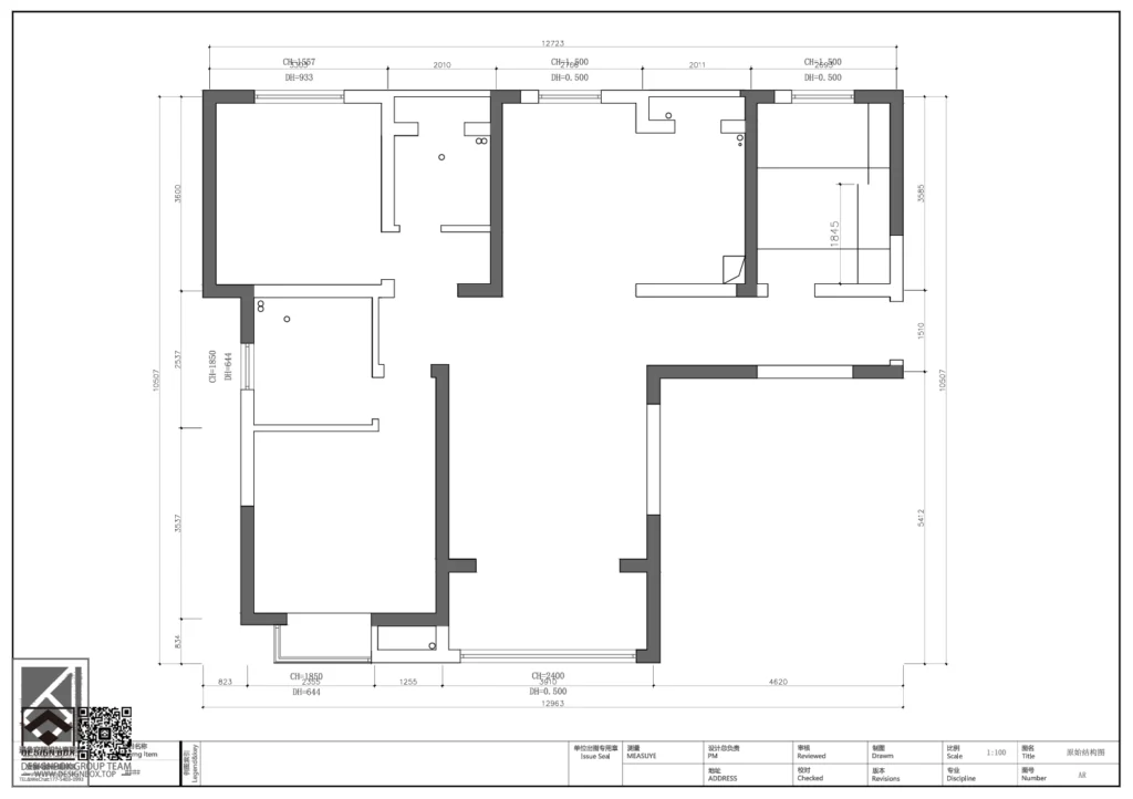
原始结构图

20241130203916335-image

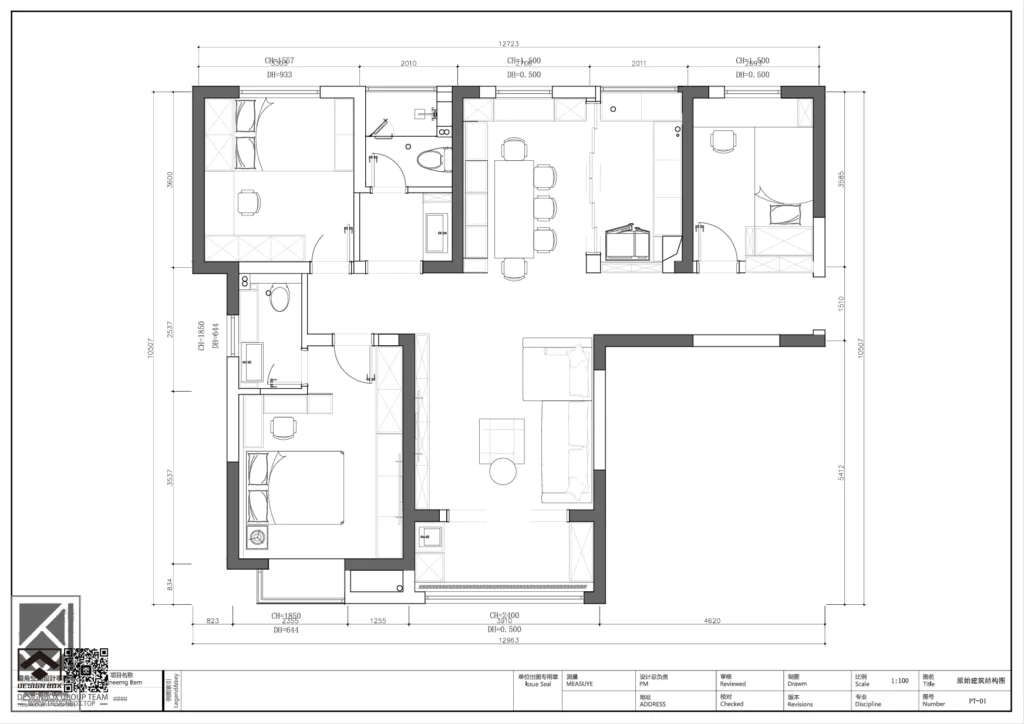
平面布置图

20241130203902524-image

相关承重墙图片资料

20241130204053348-微信图片_20241121140105(1)

 

© 版权声明
THE END
喜欢就支持一下吧
点赞3打赏楼主 分享
评论 抢沙发

请登录后发表评论

    请登录后查看评论内容