设计盒子
开通设计盒子一级会员,享受全站积分资源五折优惠!开通二级会员,享受全站积分资源免费下载!
立即开通
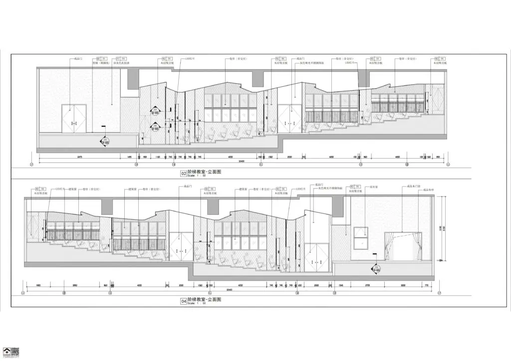
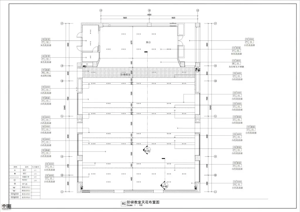
阶梯教室方案图纸,包含平面图,立面图及大样节点图-设计盒子
阶梯教室方案图纸,包含平面图,立面图及大样节点图
此内容为付费资源,请付费后查看
10积分
本站仅负责资源的整理发布,资源链接丢失可到社区反馈,默认不低于两种的下载渠道,资源分享请到社区版块发帖或投稿发布相关资源,本站不对资源的安全性负责。
付费资源

阶梯教室方案图纸,包含平面图,立面图及大样节点图

20241122160653374-2_00

20241122160656943-5_00

20241122160656424-3_00

20241122160657869-4_00

 

20241122160630434-image

 

© 版权声明
THE END
喜欢就支持一下吧
点赞2打赏楼主 分享
评论 抢沙发

请登录后发表评论

    请登录后查看评论内容