设计盒子
开通设计盒子一级会员,享受全站积分资源五折优惠!开通二级会员,享受全站积分资源免费下载!
立即开通
天花铝格栅铝方通吊顶节点-设计盒子
天花铝格栅铝方通吊顶节点
此内容为付费资源,请付费后查看
10积分
本站仅负责资源的整理发布,资源链接丢失可到社区反馈,默认不低于两种的下载渠道,资源分享请到社区版块发帖或投稿发布相关资源,本站不对资源的安全性负责。
付费资源

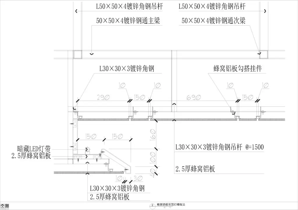
天花铝格栅铝方通吊顶节点

20241122015635998-天花铝格栅铝方通铝扣板铝板灯槽石膏板收口1

20241122015636870-天花铝格栅铝方通铝扣板铝板灯槽石膏板收口2

20241122015638729-天花铝格栅铝方通铝扣板铝板灯槽石膏板收口4

20241122015637603-天花铝格栅铝方通铝扣板铝板灯槽石膏板收口3

20241122015648696-天花铝格栅铝方通铝扣板铝板灯槽石膏板收口5

20241122015649170-天花铝格栅铝方通铝扣板铝板灯槽石膏板收口6

 

© 版权声明
THE END
喜欢就支持一下吧
点赞1打赏楼主 分享
评论 抢沙发

请登录后发表评论

    请登录后查看评论内容