设计盒子
开通设计盒子一级会员,享受全站积分资源五折优惠!开通二级会员,享受全站积分资源免费下载!
立即开通
设计盒子-室内设计师百宝箱
设计盒子-室内设计师百宝箱
设计盒子-室内设计师百宝箱
设计盒子-室内设计师百宝箱
设计盒子-室内设计师百宝箱
设计盒子-室内设计师百宝箱
设计盒子-室内设计师百宝箱
设计盒子-室内设计师百宝箱
设计盒子-室内设计师百宝箱
设计盒子-室内设计师百宝箱
设计盒子-室内设计师百宝箱

利民雅苑售楼部设计及效果图制作(包含3dmax源文件+平面布置图+ 预算源文件下载)

利民雅苑售楼部设计及效果图制作(包含3dmax源文件+平面布置图+ 预算源文件下载)-设计盒子
利民雅苑售楼部设计及效果图制作(包含3dmax源文件+平面布置图+ 预算源文件下载)
此内容为付费资源,请付费后查看
400
立即购买
您当前未登录!建议登陆后购买,可保存购买订单
本站仅负责资源的整理发布,资源链接丢失可到社区反馈,默认不低于两种的下载渠道,资源分享请到社区版块发帖或投稿发布相关资源,本站不对资源的安全性负责。
付费资源

项目地址:宿州市利民雅苑售楼部
项目时间:2023年9月
使用软件:3DMAX+CAD+PS+CV[
现场图片:

20241204132733202-未标fdsfsdf题-1

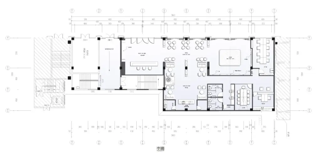
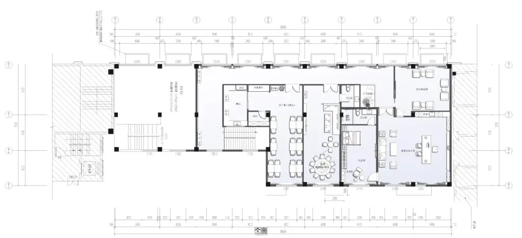
图纸展示:

20241204132803598-微信图片_20230911213931

20241204132804618-微信图片_20230911214929

效果图展示:

一层效果图

20241204132904854-11111111111111111111111_Camera_2.jpg

20241204132905581-11111111111111111111111_Camera_3.jpg

20241204132905649-11111111111111111111111_Camera_5.jpg

20241204132905726-11111111111111111111111_Camera_4.jpg

20241204132914426-render.jpg

20241204132915604-一楼新改_Camera_1.jpg

20241204132916708-一楼新改_Camera_2.jpg

20241204132916728-一楼新改_Camera_3.jpg

20241204132923701-一楼新改_Camera_4.jpg

二层效果图

20241204133023314-二楼效果图_Camera_5.jpg

20241204133022972-二楼效果图_Camera_4.jpg

20241204133023473-二楼效果图_Camera_7.jpg

20241204133023315-二楼效果图_Camera_6.jpg

20241204133034620-二楼效果图_Camera_8.jpg

20241204133036110-二楼效果图_Camera_9.jpg

20241204133037613-二楼效果图_老总办公室1.jpg

20241204133037213-二楼效果图_贵宾接待室.jpg

20241204133044790-二楼效果图_老总办公室2.jpg

20241204135939547-image

 

预算展示:

© 版权声明
THE END
喜欢就支持一下吧
点赞1打赏楼主 分享
评论 抢沙发

请登录后发表评论

    请登录后查看评论内容