设计盒子
开通设计盒子一级会员,享受全站积分资源五折优惠!开通二级会员,享受全站积分资源免费下载!
立即开通
设计盒子-室内设计师百宝箱
设计盒子-室内设计师百宝箱
设计盒子-室内设计师百宝箱

李白家水光屋灵璧店(3D+CAD下载)

李白家水光屋灵璧店(3D+CAD下载)-设计盒子
李白家水光屋灵璧店(3D+CAD下载)
此内容为付费资源,请付费后查看
150
立即购买
您当前未登录!建议登陆后购买,可保存购买订单
本站仅负责资源的整理发布,资源链接丢失可到社区反馈,默认不低于两种的下载渠道,资源分享请到社区版块发帖或投稿发布相关资源,本站不对资源的安全性负责。
付费资源
已售 1

项目地址:安徽宿州灵璧
项目时间:202308
项目面积:50
主要材料:金属饰面板,软膜天花
提供下载:3D+CV+效果图
使用软件:3DMAX2023+CHAOS VANTAGE +CAD2007 + PS
现场图片:

20241203095210227-微信图片_20230526164300

20241203095210816-微信图片_202305261643002

20241203095209320-微信图片_202305261643001

20241203095211896-微信图片_202305261643003

20241203095229159-微信图片_202305261643004

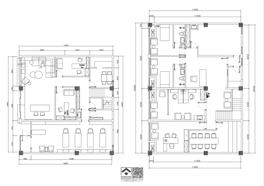
图纸展示:

20241203095424421-image

效果图展示:

20241203095314699-微信图片_2023061517

20241203094959530-水光屋新店_6

20241203095000691-水光屋新店_7

 

© 版权声明
THE END
喜欢就支持一下吧
点赞2打赏楼主 分享
评论 抢沙发

请登录后发表评论

    请登录后查看评论内容